- westwall

Direkt zum Seiteninhalt

Hauptmenü:

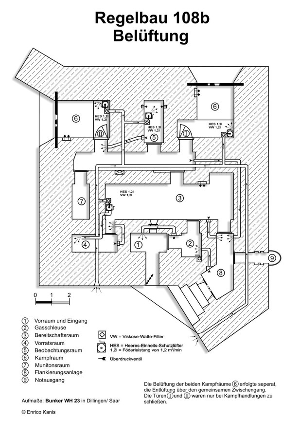
Bezeichnung  Regelbau 108b, 
  MG-Schartenstand mit MG-Kasematte und Flankierungsanlage
Ausbaustärke  B-neu (2 m Wand- und Deckenstärke/ Innenhöhe 2,10 m)
Panzerteile
  2x Stahlschartenplatten 7P7 (Stärke: 10 cm)
  1x Stahlschartenplatte 422P01 (Stärke: 3 cm)
  1x Gewehrschartenverschluss 48P8 (Stärke 4 cm)
Bewaffnung  3 Maschienengewehre (MG 34 oder MG 08)
Besatzung  12 Mann
Betonvolumen
  760pm
Baujahr  1939 - 1940 
BemerkungDie Daten stammen vom Bunker 23 in Dillingen Saar, welcher respektive für viele weitere Anlagen dieses Typs steht. Besonderheit ist, dass für den Regelbau 108 der Schartenstand mit der Panzerschartenplatte 6P7 (Stärke: 20 cm) geplant war, die jedoch aufgrund der fehlenden Fertigungskapazitäten und begrenzten Rohstoffressourcen nur in geringen Zahlen am Westwall verbaut wurde. Nach Stand der Forschung ist nur noch ein Regelbau 108 erhalten (in Bous), der die Stahlschartenplatte 6P7 besitzt. Eine weitere Variante findet sich im Museumsbunker 316 in Saarbrücken, der im Schartenstand die Panzerschartenplatte 78P9 (Stärke 20 cm) verbaut hat.  
 
 
 
 
Zurück zum Seiteninhalt | Zurück zum Hauptmenü