Hauptmenü:
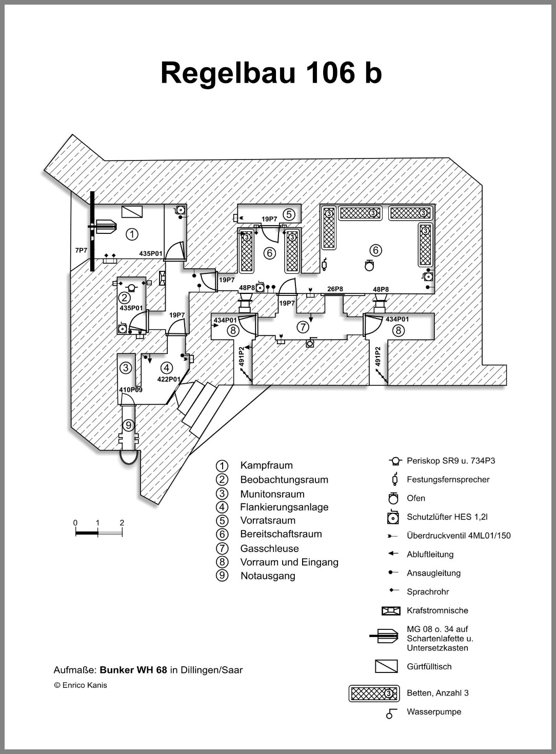
| Bezeichnung | Regelbau 106b, MG-Kasematte mit Gruppe und Flankierungsanlage |
| Ausbaustärke | B-neu (2 m Wand- und Deckenstärke/ Innenhöhe 2,10 m) |
| Panzerteile | 1x Stahlschartenplatten 7P7 (Stärke: 10 cm) 1x Stahlschartenplatte 422P01 (Stärke: 3 cm) |
| Bewaffnung | 2 x Maschienengewehre (MG 34 oder MG 08) |
| Besatzung | 18 Mann |
| Betonvolumen | 764 pm |
| Baujahr | 1939 - 1939 |
