Hauptmenü:
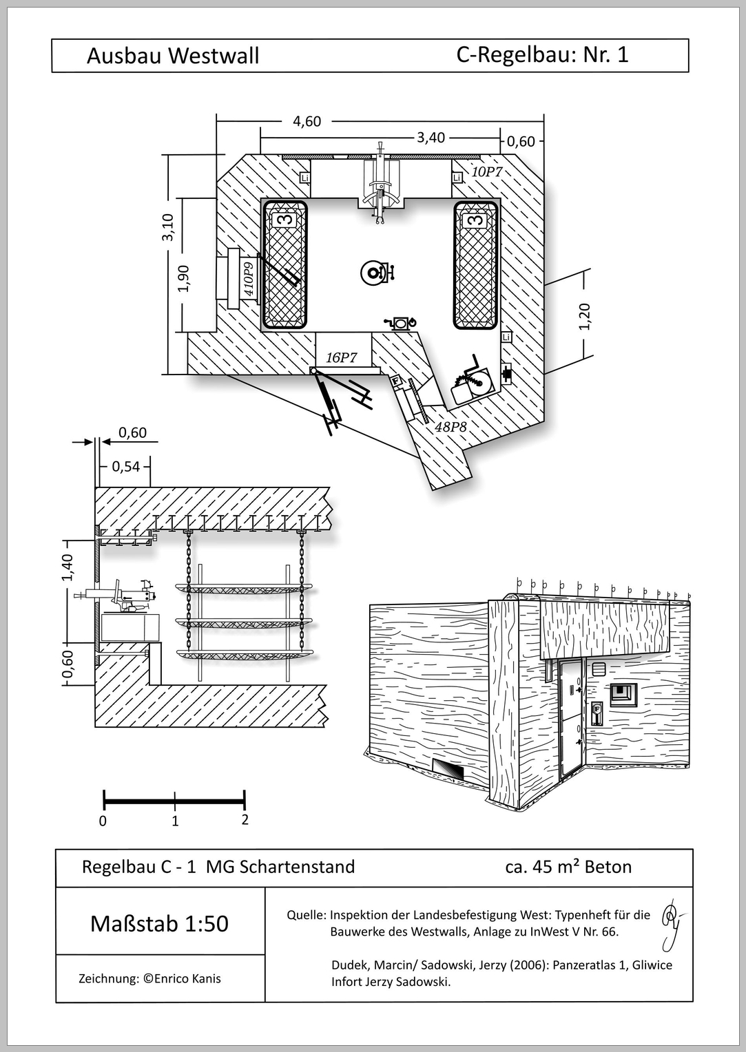
| Bezeichnung | Regelabu C1 - MG - Schartenstand in C |
| Ausbaustärke | C (0,6 m Wand- und Deckenstärke) |
| Panzerteile | 1x Stahlschartenplatten 10P7 (Stärke: 6 cm) 1x Gewehrschartenverschluss 48P8 (Stärke: 4 cm) |
| Bewaffnung | 1 x Maschienengewehre MG 08 oder MG 34 |
| Besatzung | 6 Mann |
| Betonvolumen | 45 pm |
| Baujahr | 1937 - 1939 |
