- westwall
Direkt zum Seiteninhalt
Hauptmenü:
Home
Museen
Kreis Merzig
B-Werk in Besseringen
Bunker 767 in Beckingen
Bunker 733 in Beckingen
Bunker 700 in Haustadt
Bunker 833 in Düppenweiler
Kreis Saarlouis
Bunker 20 in Dillingen
Kreis Saarbrücken
Bunker
Regelbauten
Inventar
Waffen
Beschriftungen
Panzeratlas
Panzertürme
Schartenpanzerung
Türen
Sonstige Panzerteile
Geschichte
Übersicht
Kapitel 1
Kapitel 2
Kapitel 3
Kapitel 4
Ebene 20
Touren
Panzertürme
Schartenpanzerung
Türen
Sonstige Panzerteile
Panzeratlas
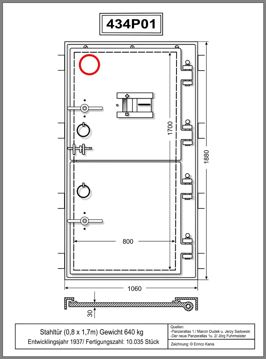
Bezeichnung
Stahltür 434P01
Stärke
30 mm
Gewicht
640 kg
Abmessnung
innen: 1700 mm x 800 mm
Home
|
Museen
|
Bunker
|
Panzeratlas
|
Geschichte
|
Touren
|
Generelle Seitenstruktur
Zurück zum Seiteninhalt
|
Zurück zum Hauptmenü
Um diese Website nutzen zu können, aktivieren Sie bitte JavaScript.